

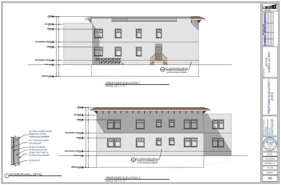
The Seashore, a 14-unit apartment project in a coastal California city. With plans to remodel and expand to 16 units, it targets the Cal Poly Humboldt University community. This investment opportunity focuses on construction completion, creating modern housing options for students, faculty, and professionals. The Seashore offers a unique chance to influence local housing and connect with the university environment.
For nearly a decade, Central Lending has helped investors build wealth through diversified funds and secured promissory notes. Our proven strategies offer consistent returns backed by a strong track record in real estate lending.
View ProfileEureka, CA
Relli connects investors with exclusive real estate opportunities by acting as a trusted intermediary. Our marketplace is comprised of experienced sponsors, curating a pipeline of deals that match your investment criteria. This means you gain direct access to high-quality real estate sponsors without paying a commission.
Our sponsors are seasoned real estate professionals with strong backgrounds and a proven track record of success. We work exclusively with sponsors who have demonstrated expertise and deep industry knowledge, ensuring that every opportunity on our platform meets rigorous standards of quality and performance.
No, Relli is a commission-free platform. Our business model is designed to connect you directly with the sponsor, so you invest in the deal without paying any extra fees. This transparent approach ensures that more of your capital works for you, aligning our success with your investment outcomes.
Currently, we don't offer property visits due to logistical complexities and the diverse locations of our investments. However, we provide comprehensive property details, photos, and updates on your investment properties through our platform so you can stay informed.
You'll receive regular key updates on your investments, including property performance, market trends, and other relevant information. We believe in keeping you well informed.
Reserving is non-binding and shows interest in allocation.